|
1
arald
Schlee & Partner
|
|
IMMOBILIEN
|
|
1
zurück
zu den Immobilienangeboten
Großzügiges
Wohnhaus mit zwei abgeschlossenen Wohnungen
in 19303 Tewswoos
|
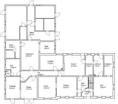
Das Objekt
befindet sich in der Gemeinde Tewswoos
einem Ortsteil von Vielank, ca. 25 km südwestlich
der Kreisstadt Ludwigslust in einer
sehr schönen Ortslage. Das auf dem ca. 2.732 m² großem
Grundstück, um 1914 erbaute Wohnhaus hat
eine Wohnfläche von ca. 306,27 m² (davon ca.
102,21 m² für die Dachgeschoßwohnung)
zzgl. Dachboden und Teilkeller. Die Anzahl der Zimmer,
sowie vorhandene Gegebenheiten, lassen
viele Gestaltungsmöglichkeiten zu. Eine Option wäre z.
B. ein generationsverbundenes Wohnen. 2004
wurde die Holzvergaserheizung, 2006 und 2009 die
Gasheizungen, 2003 die Fenster, die
Elektroanlage und die Sanitäranlagen erneuert. In der Hauptwohnung
im Erdgeschoß ist der Hausflur, eine Diele,
ein Flur, eine Küche mit EBK, eine Küche ohne EBK,
eine Kammer, ein Wohnzimmer, ein
Esszimmer, zwei Schlafzimmer, ein Kinderzimmer, ein Bad mit WC,
eine Sauna, ein Hobbyraum, ein
Arbeitszimmer, eine Werkstatt, eine Garage und ein Stallteil
vorhanden.
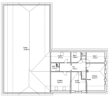
Die
Dachgeschoßwohnung, verfügt über einen
separaten Zugang über den Hausflur, einen Flur, ein Wohnzimmer,
ein Schlafzimmer, zwei Kinderzimmer,
ein Bad, ein WC, eine Küche mit EBK und einen Abstellraum.
Auf dem Grundstück steht ein Scheunengebäude
mit ca. 240 m² und ein Stallgebäude mit
insgesamt ca. 88 m², in dem unter anderem die
Heizungen für die Erdgeschoßwohnung, eine Garage und
Abstellfläche untergebracht sind.
|

Aussenansicht
|

Aussenansicht
|
Aussena nsicht
|

Aussenansicht
|

Aussenansicht
|

Stellgebäude
|

Scheune
|

Garten |

Diele im EG
|

Wohnzimmer im EG
|

Esszimmer 2 im EG
|

Küche mit EBK im EG
|

Kammer im EG
|

Küche ohne EBK im EG
|

Kinderzimmer im EG |

Schlafzimmer 2 im EG
|

Schlafzimmer 1 im EG
|

Flur im EG
|

Hobbyraum im EG
|

Arbeitszimmer im EG
|

Bad im EG
|

WC im EG
|

Sauna im EG
|

Garage im EG
|

Werkstatt im EG
|

Stallteil |

Stallteil |

Flur im EG |

Wohnzimmer im DG |

Kinderzimmer im DG |

Bad im DG |

WC im DG |

Küche mit EBK im DG |

Schlafzimmerim DG |

Kinderzimmer im DG |

Boden |
Grundstücksgröße:
|
ca.2.732 m²
|
Gebäude:
|
Baujahr um 1914
teilsaniert - guter Zustand
Wohn-
Nutzfläche ca. 658,57 m²
ca. 204,06
m² Wohnfläche Erdgeschosswohnung, zzgl.
Garage, Werkstatt,
Stallteil ca. 117,75 und Teilkeller ca.
42,57 m²,
ca. 102,21
m² Dachgeschoßwohnung,
zzgl. Boden ca.
191,98
1993 wurde
die Ölheizung, 2006 die Fenster und das
Bad der
Hauptwohnung erneuert
Erdgeschoß:
1 Hausflur, 1 Diele, 1 Flur, 1 Küche
mit EBK, 1 Küche ohne EBK, 1
Kammer, 1 Wohnzimmer, 1 Esszimmer, 2
Schlafzimmer, 1
Kinderzimmer,
1 Bad mit
WC, 1 Sauna, 1 Hobbyraum,
1
Arbeitszimmer, 1 Werkstatt, 1 Garage,1
Stallteil
Dachgeschoß:
1 Flur, 1 Wohnzimmer, 1 Schlafzimmer, 2 Kinderzimmer,
1 Bad, 1 WC,
1 Küche mit EBK,
1 Abstellraum.
|
Nebengelaß: |
1 Scheunengebäude
ca. 240 m²,
1 Stallgebäude ca. 88m²
|
Energieausweis: |
193,5
kWh/m²a – Energieeffizienzklasse F,
Energieträger: Erdgas und Stückholz, |
Kaufpreis:
|
269.000,00 EUR
|
Maklerprovision:
|
Die
Maklerprovision beträgt für Verkäufer+Käufer je
3,57% inkl. MWSt. |

Grundriss Teilkeller
|

Grundriss Erdgeschoß
|

Grundriss Dachgeschoß
|
Datenschutzerklärung
Dieses
Angebot beruht auf Angaben des Verkäufers und nach bestem Wissen.
Irrtum und Zwischenverkauf vorbehalten. Dieses Exposé ist eine
Vorinformation, als Rechtsgrundlage gilt allein der notariell
abgeschlossene Kaufvertrag. |
zum Seitenanfang

Harald
Schlee & Partner
Immobilien - Finanzierungen - Versicherungen
Lange Straße 96 / 19230 Hagenow
Tel.: (03883) 72 81 01 / Fax: (03883) 72 90 61
E-Mail: Schlee-Immobilien@t-online.de
|
|